MB-59 SLIDE

Przepuszczalność powietrza: klasa 3, PN-EN 12207:2001
Wodoszczelność: klasa 6A, PN-EN 12208:2001
Obciążenie wiatrem: klasa C3, PN-EN 12210:2001
Izolacyjność termiczna: Uf od 1,9 W/(mK)

Doskonały sposób na optyczne powiększenie przestrzeni

System MB-59 Slide idealny do wykonywania drzwi przesuwnych z izolacją termiczną, które można wbudowywać w ściany murowane, ogrody zimowe, fasady aluminiowe lub zabudowy witrynowe. Kształtowniki systemu MB-59 Slide posiadają dwa różniące się izolacją termiczną warianty konstrukcji: ST i HI. Zakres dostępnych profili obejmuje ościeżnice dwu- oraz trzyszynowe. Szeroki zakres szklenia pozwala na montowanie zestawów jedno- lub dwukomorowych, w tym także akustycznych lub antywłamaniowych.

Dodatkowe informacje

  • duże dopuszczalne gabaryty skrzydeł drzwi: wysokość do 2,6 m, szerokość do 1,8 m; maksymalny ciężar skrzydła do 160 kg
  • smukłe i wytrzymałe kształtowniki o trzykomorowej konstrukcji, w których centralną część stanowi komora izolacyjna z szerokimi przekładkami termicznymi
  • ościeżnice 2- lub 3-szynowe, pozwalające na wykonywanie drzwi o szerokim świetle przejścia
  • duży zakres grubości szyb możliwych do zamontowania w skrzydłach drzwi (do 42 mm), co daje swobodę w doborze szkła o odpowiednich parametrach
  • możliwość montażu większości dostępnych na rynku okuć przesuwnych
  • opcja montażu drzwi w zabudowie indywidualnej a także w większych konstrukcjach: fasadach słupowo-ryglowych lub ogrodach zimowych
  • maksymalnie uproszczona technologia wykonania konstrukcji, skracająca czas i koszty wykonania drzwi
  • kompatybilność z innymi systemami firmy Aluprof

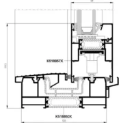
Przekroje

Pliki do pobrania - katalogi i ulotki

umów się na pomiar
Umów się na pomiar

Plastbud
ul. Poniatowskiego 12
32-700 Bochnia

Plastbud